Kinderbetreuungszentrum Tarrenz, geladener Wettbwerb | 2017

mit Stefan Brabetz und Wolfgang Sterneder | ARGE Brabetz-Haselwanter-Sternede

Gerald Haselwanter
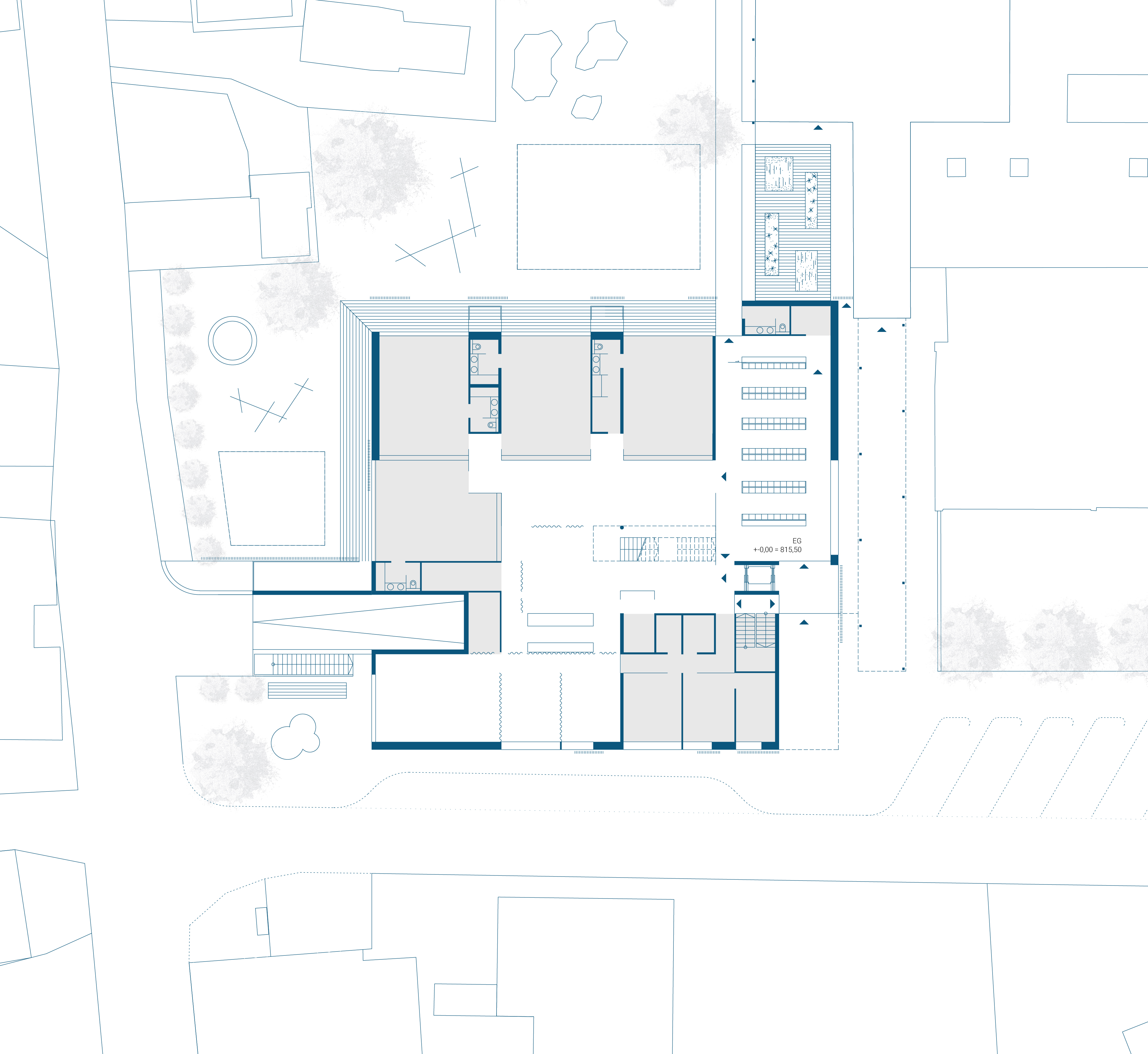
Der vorgeschlagene Entwurf sieht eine Bebauung mit einem zweigeschossigen, kompakten Baukörper mit annähernd quadratischem Grundriss vor. Das Volumen fügt sich in seiner flächenmäßigen Ausdehnung und seiner Höhenentwicklung in die umgebende Baustruktur ein und ergänzt das bestehende Ensemble der Volksschule und des Veranstaltungssaales in Richtung Westen. Durch diese Positionierung wird der bestehende Vorplatz der Volksschule nach Westen hin abgeschlossen und eine zentrale Hofsituation geschaffen...

︎ link: architekturwettbewerb.at
Gerald Haselwanter buerohaselwanter
︎

︎

︎